площадью 194,90 м2, по цене 21539219 по адресу Мытищи - Академика Каргина улица,38 корус 1

Цена 21 539 219 р.
Адрес Мытищи, Академика Каргина улица,38 корус 1
Площадь помещения 194,9 м2
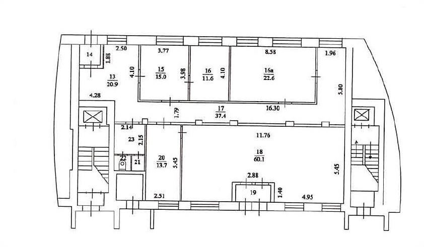
Нежилое помещение площадью 194.9 кв.м. по адресу Московская область, р-н. Мытищинский, г. Мытищи, ул. Академика Каргина, д. 38, корп. 1, пом. III, кадастровый номер: 50:12:0101704:3117, Этаж № 1. Кадастровые номера иных объектов недвижимости, в пределах которых расположен объект недвижимости: 50:12:0101704:96. Вид права: Собственность. Ограничение прав и обременение объекта недвижимости: не зарегистрировано. Об объекте продажи: вход отдельный со двора, коммуникации центральные, количество мокрых точек 2, мощность, кВт 15, высота потолков 2,9 м. Требуется косметический ремонт. Прекрасная транспортная доступность, выезд на Ярославское шоссе без пробок, маршрутка до м. BДHX, м. Poстокино, автобус до г. Королев, до ст. Мытищи 10 минут пешком. Это отличное многофункциональное помещение под разные виды деятельности от форматов dаrk stоrе/ dark kitchen, до швейного производства, музыкальной школы, студии звукозаписи, фотостудии и склада товаров мapкeтплeйcoв. Продавец юридическое лицо. Цена указана с учетом НДС. Звоните, оперативно ответим на все ваши вопросы.
Объявление № 23462707
Дата подачи:
23 октября 2025 г. 3:36
Дата обновления:
22 октября 2025 г. 4:00
Просмотров 12 Хотите продать быстрее?

Продавец
Татьяна
Показать номер телефона
Пожаловаться
Комментарии:
Добавить